



【条件】
・貼る、縫うのはNG
・自分用(本業、副業)と相手用の名刺を入れるため、ポケットの数は3個以上
・名刺が50枚ほど入る
・名刺が落ちない、取り出しやすい構造
【セールスポイント】
・名刺が縦横どちらからでも入る
・組み合わせた3枚の紙を固定する構造が見えない
【反省点】
・固定用のツバに蓋がひっかかる
・どこから開けるのか、どこを持てば適切に使えるのか分からない→説明が必要
・名刺を出すまでのアクションが多い
・名刺入れにしては大きい&分厚い→服のポケットに入らない
・一番外側の折りが装飾で留まっている→機能性がない
・どこがどこだか分からない
反省点に関しては、以下のツイートの動画を参考にして下さい。
【制作過程】
1 仕切る構造
1-1 ペーパーモデル
1-2 製図
2 閉じる構造
2-1 ペーパーモデル
2-2 製図
3 取り出しやすい構造
3 製図
4 完成
1 仕切る構造
1-1 ペーパーモデル
まず、仕切る構造のパターンを出来るだけ多く提案します。この段階ではアイデアの数を増やすことが最大の目的なので、デザイン性や機能性は度外視します。


例えば、長方形の紙を3回折った後、上の写真のように切れ込みを入れると、4枚の仕切りができます。これをベースに、折る回数や切れ込みの位置、紙の大きさや用紙の縦横比を調整し、複数のパターンを生成します。
孔雀みたいなものや、

ポケットが三角形になったもの、
ラッパのようなものまで。30分間で合計7パターン出来ました。
その後、今度はデザイン性や機能性を重視しながら一つに絞ります。
最終的には、下の写真のような仕切りを採用しました。



選んだ理由としては、
・面の数が多く、仕切りが複数存在すること
・面があまり重ならないため、仕切りとして固定しやすいこと
・三角形が現れてデザインの独創性に優れていたこと
が挙げられます。
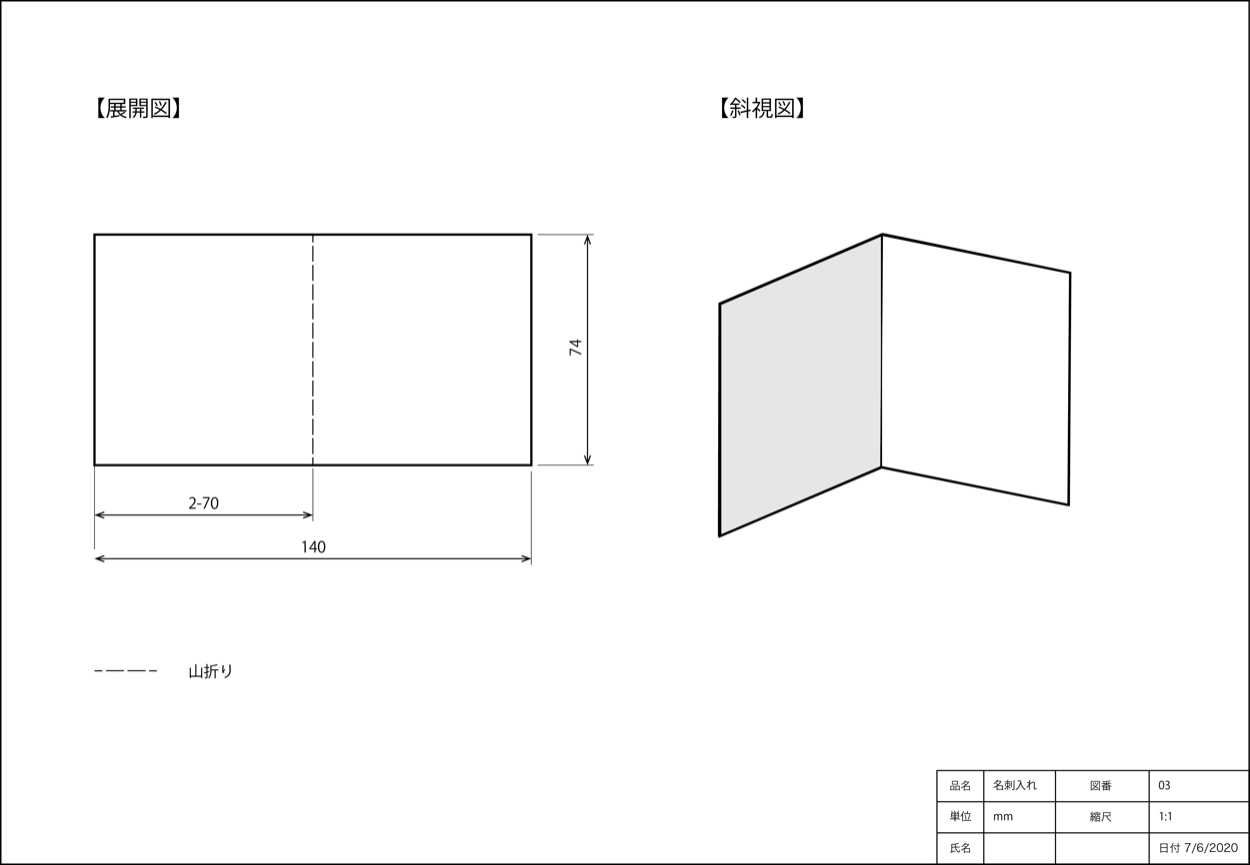
1-2 製図
仕切りのデザインが決定したので、製図をします。
ここでは、「図面を見ただけで誰でも再現できる」ことが最も重要です。そのため、製図のルールに乗っ取りつつ、見やすいフォント、文字の大きさ、線の太さなどを吟味していきながら製図をしていきます。
(追記:この課題が課せられた当時は、初めて製図を行うことやコロナ禍で詳細な製図の方法を教えられないというのもあり、製図の妥当性よりもグラフィック的な要素が評価されていました。)
上の図面が、1回目に提出した図面です。
そこでは、
・対角線の寸法は記入不要(縦と横の寸法が分かれば算出できるため)
・輪郭線や引き出し線など、用途に応じて線の太さを調節すること
・斜視図に立体感を加えること(斜視図はあくまでも絵なので、陰影を適宜加える必要がある)
の3点を指摘されました。

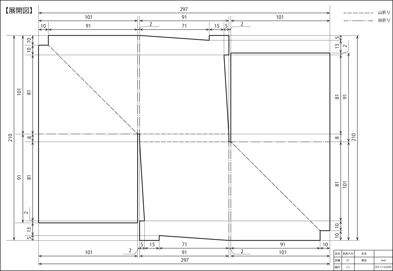
そして、修正を加えた図面がこちらです。確かに、自分でも分かりやすくなったと感じます。
また、斜視図を新たに加え、より形状が捉えやすいようにしました。
(追記:左下の”70”に関しましては、本来”70-3”、つまり70mm が3回連続している、と表記すべきです。そのように図面を再度修正したはずですが、残っていたデータは”70”のままでした……すみません。)
2 閉じる構造
1-1 ペーパーモデル
続いて、閉じる構造を考えていきます。
きちんとした閉じる構造が無ければ、名刺ケースから名刺が出てしまいます。これでは、どんなにデザイン性に優れていてもケースとして役に立ちません。
そのため、前項で仕切りを考えた時のような「とりあえずアイデアを出す」方法では不適切なデザインが生成されかねません。既に決定した仕切りのデザインをベースに、機能性を最優先してじっくり構造を考えていきます。
(お詫び:閉じる構造のペーパーモデルの写真が残っていませんでした……考えた構造は一つのみですので、次図の図面を参照して下さい。)
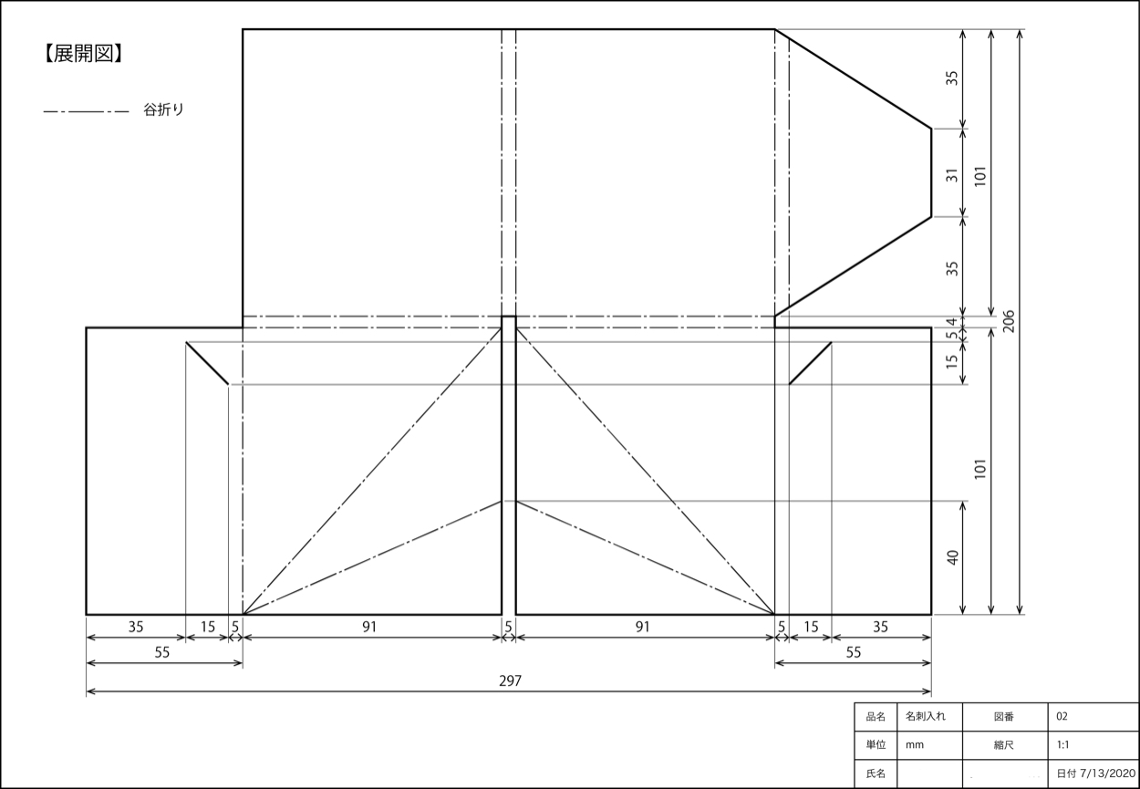
1-2 製図
前項と同じ要領で製図していきます。



使用する紙の枚数に上限が無かったため、紙を2枚使って固定する方法を考えました。
発案自体は意外とすんなりできたのですが、他の生徒よりも複雑な構造になったため、製図で苦労しました。
また、構造に伴って動作も複雑になったため、斜視図に加えてスケッチを数点用意しました。まだIllustrator の使い方をよく理解していなかった時期だったので、パスや重ね順、切り取りなどで苦戦しました。しかしながら、スケッチを用意していたことが評価されたので、苦労の甲斐はあったと思います。
3 取り出しやすい構造
1 製図
最後に、取り出しやすい構造を考えます。
とは言っても、デザイン自体は8割ほど完成しています。そこから、切れ込みや折り目を加えたり、逆に減らしたりしてデザインをブラッシュアップしていき、より取り出しやすい構造を目指していきます。
つまり、仕上げの段階であるとも言えます。


最終的には、上のようなデザインになりました。
具体的な修正点は以下の通りです。
・”遊び”の追加
→ ポケットの中に入っている名刺の数が1枚でも、50枚であっても、取り出しやすさを担保しなければなりません。そのため、ポケットに4mm の厚さを加え、スペースを確保しました。
・固定要素の追加
→ 名刺の収納数が少ないと、その分スペースができるため固定力が落ちます。ポケット部分の折る回数を1回から2回に増やすことで、折り曲げられた部分の元に戻ろうとする力を増やし、テンションを利用して名刺を抑えるようにしました。
・構造の”引き算”
→ 前項で閉じる構造を考えた際、紙を2枚使用して固定力を持たせていました。しかし、ペーパーモデルで何度も試用しているうちに、固定用の紙が抜け落ちたり、たるんで不格好になったり、変な折り目が付くようになりました。そのため、過剰な要素だと判断し、枚数を1枚に減らしました。それに伴い、仕切りの構造に切れ込みを、閉じる構造にツバを加え、切れ込みにツバを噛ませる固定法に変更しました。
4 完成




ここから閉じやすくしたり、どこから開けるのか分かりやすくしたりと改良するはずでした。
しかし、山折りの線を切ったり、切れ込みの位置を間違えたり等、些細なミスの積み重ねで提出期限のタイムリミットを迎えてしまいました。 最低ラインで提出してしまったことは、本当に悔しく感じます。
ものづくりの苦しさと厳しさ、そして楽しさの断片を垣間見ました。
一方、先生からはアドバイスと共に励ましの言葉を頂きました。
「貴方は難しい構造に手を出していて、且つ普通はもっと簡単な構造に変えようと逃げるところを納得するまで諦めない。(何故か)茨の道に進むから、その"攻めの姿勢"を変えないで欲しい。」
自分の中では、諦めが悪いためにブラッシュアップ出来ず、野暮なデザインになってしまったと思っていました。そのため、本来は魅力をアピールするプレゼンの場で、ネガティブなポイントばかり語ってしまいました。
先生の講評のおかげで、必要以上に自分を卑下せず、客観的に自分を評価する重要性を痛感しました。
この授業は、様々な方面で成長できた有意義なものでした。
(制作期間:6/29/2020〜7/13/2020)
